Used 2009 Keystone RV Cougar 26BHS
AS-IS
Ask the Product Expert
Disclaimer: Responses provided by Ask the Product Expert are created by AI and offer general content for informational purposes only and should not be considered professional advice or official representation of vehicle features, pricing, or availability. Our dealership did not create and is not responsible for the information. The information provided may be incomplete or inaccurate and should be checked. For the most up-to-date and accurate information, please contact our dealership directly. Any offers, pricing, or availability mentioned by the AI-generated response are not binding and are subject to verification by authorized dealership personnel.
When using the AI Product Expert the questions you submit, the responses provided by the AI Product Expert, and your IP Address will be captured. This data is captured in an anonymized manner and used to i) improve the accuracy and capabilities of the AI Product Expert, and ii) prevent bots or other abuse of the tool. Information will be captured so that the data cannot be identified to a specific customer. Please refrain from including identifying or personal information in any question you submit to the AI Product Expert. Collection and use of information will be in accordance with our Privacy Policy.
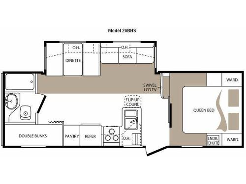
Single Slide Cougar Bunkhouse Travel Trailer w/Rear Corner Bunk Beds, Rear Corner Bath w/Sink, Toilet & Tub/Shower, Booth Dinette & Sofa Slideout w/Overhead Cabinets, Pantry, Refrigerator, 3 Burner Range, Double Kitchen Sink, Flip-Up Countertop, Overhead Cabinets, Swivel LCD TV, Front Queen Bed w/Wardrobes Both Sides and Much More!
Finally found the trailer I was looking for. Parris RV made me a great deal. They asked me if I had a trade in. I said yes, but I doubted they would give me what I wanted for it. Well they came close and they made it real easy for me. Then, I have to say when I went to pick up my new trailer, the walk through education was fantastic! I learned things about my new trailer I would have never figured - Kevin
Stock# CO502502
| Sleeps | 8 |
| Slides | 1 |
| Length | 28 ft 11 in |
| Ext Width | 8 ft |
| Ext Height | 10 ft 11 in |
| Hitch Weight | 575 lbs |
| Dry Weight | 5805 lbs |
| Cargo Capacity | 1995 lbs |
| Fresh Water Capacity | 41 gals |
| Grey Water Capacity | 56 gals |
| Black Water Capacity | 28 gals |
| Tire Size | 225/75R15D |
| Furnace BTU | 30000 btu |
| VIN | 4YDT26B249V502502 |
Loading
When Cole Davis founded Keystone RV in 1996 his vision was clear: to build a quality RVs loaded with features, and provided exceptional value to owners. To accomplish his goal, Cole would recruit and build a strong team, focus on keeping overhead low, and empower the people closest to the customer to make decisions.
Today, Keystone RV Company is the #1 manufacturer of towable RV’s in North America with more than a million owners, 5,000 team members and over a million square feet of manufacturing in Goshen, Indiana and Pendleton, Oregon. Although a lot has changed, Cole’s wisdom still guides us. Our goal is to surprise and delight our owners at each and every touchpoint, providing them with the information, quality, and assurance they need to move in the direction of their dreams – to Live It Out™
Parris RV is not responsible for any misprints, typos, or errors found in our website pages. Any price listed excludes sales tax, registration tags, and delivery fees. Manufacturer pictures, specifications, and features may be used in place of actual units on our lot. Please contact us @801-268-1110 for availability as our inventory changes rapidly. All calculated payments are an estimate only and do not constitute a commitment that financing or a specific interest rate or term is available.
Manufacturer and/or stock photographs may be used and may not be representative of the particular unit being viewed. Where an image has a stock image indicator, please confirm specific unit details with your dealer representative.



