Used 2014 Forest River RV Forester 3171DS Ford
Only 15K Miles!!Ask the Product Expert
Disclaimer: Responses provided by Ask the Product Expert are created by AI and offer general content for informational purposes only and should not be considered professional advice or official representation of vehicle features, pricing, or availability. Our dealership did not create and is not responsible for the information. The information provided may be incomplete or inaccurate and should be checked. For the most up-to-date and accurate information, please contact our dealership directly. Any offers, pricing, or availability mentioned by the AI-generated response are not binding and are subject to verification by authorized dealership personnel.
When using the AI Product Expert the questions you submit, the responses provided by the AI Product Expert, and your IP Address will be captured. This data is captured in an anonymized manner and used to i) improve the accuracy and capabilities of the AI Product Expert, and ii) prevent bots or other abuse of the tool. Information will be captured so that the data cannot be identified to a specific customer. Please refrain from including identifying or personal information in any question you submit to the AI Product Expert. Collection and use of information will be in accordance with our Privacy Policy.
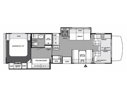
You will have plenty of space to take family and friends in the Forester 3171DS. This class C motor home features two slide outs, a rear bedroom and a kids' den/bunk area.
As you step inside, a dinette with overhead cabinets is located to your right. Over the cab, a standard 54" x 80" bunk with storage offers extra sleeping space. You may choose the optional over cab entertainment center with optional deluxe TV.
Across from the entry door, a slide out highlights a 68" sofa, overhead cabinets and a three burner range with overhead microwave. Continuing around the corner is a double kitchen sink, overhead cabinets and a flip down counter extension. A refrigerator and pantry are on the opposite wall.
As you move toward the back of the Forester 3171DS, a private kid's area offer a kid's sofa sleeper with a flip-down 28" x 72" bunk above. There is storage and space for an optional TV on the opposite wall.
The private bathroom across from the kid's den includes a toilet, hamper, linen storage, extended vanity and sink, and a tub/shower combination.
A rear queen bedroom features overhead storage cabinets at the head of the bed. Double wardrobes and drawers are across the room with space for an optional TV.
This was not our first trailer purchase. Over the years we have been to many different trailer dealerships in the valley and never had such a positive experience. Our salesman really went above and beyond to ensure it was the trailer that would fit for our family and our wants. Even when they did not have the model we were looking for on their main lot he took the time to go over to the overflow lot - Jeremy
Stock# FRA37294
Chassis: Ford
| Sleeps | 8 |
| Slides | 2 |
| Length | 32 ft 3 in |
| Ext Width | 8 ft 5 in |
| Ext Height | 11 ft 3 in |
| Int Height | 7 ft |
| Hitch Weight | 5000 lbs |
| GVWR | 14500 lbs |
| Dry Weight | 12500 lbs |
| Cargo Capacity | 2300 lbs |
| Fresh Water Capacity | 50 gals |
| Grey Water Capacity | 39 gals |
| Black Water Capacity | 39 gals |
| Furnace BTU | 30000 btu |
| Miles | 15446 |
| Chassis | Ford |
| VIN | 1FDXE4FS1EDA37294 |
Loading
Customer Satisfaction is Our #1 Priority.
At Forest River, Inc., your needs, interests, budget, and lifestyle are at the forefront of everything we do. This affects every step from design, to the manufacturing floor, and on to you, our Customer. Whatever your need—recreation, transportation, or cargo hauling—we strive to bring quality products within reach of everyone. It’s not just a slogan: “Customer Satisfaction is Our #1 Priority.”
In 1996, Forest River founder Peter Liegl had a vision. He foresaw an RV company dedicated to helping people experience the joy of the outdoors by building better recreational vehicles. After purchasing certain assets of Cobra Industries, the Company started manufacturing pop-up tent campers, travel trailers, fifth wheels and park models. Continually growing, Forest River now operates multiple manufacturing facilities throughout the United States producing Class A, B and C motorhomes, travel trailers, fifth wheels, toy haulers, pop-up tent campers, truck campers, park model trailers, destination trailers, cargo trailers, commercial vehicles, buses, pontoons, and mobile restroom trailers.
Our large production capacity enables us to fill our customers' orders promptly without cutting corners or rushing through production procedures. This ensures that each Forest River product is conscientiously built and undergoes thorough, detailed inspection before it's shipped to the customer. This guarantees that every family who desires quality recreation will find a Forest River product that serves their needs, interests, budget, and lifestyle.
Parris RV is not responsible for any misprints, typos, or errors found in our website pages. Any price listed excludes sales tax, registration tags, and delivery fees. Manufacturer pictures, specifications, and features may be used in place of actual units on our lot. Please contact us @801-268-1110 for availability as our inventory changes rapidly. All calculated payments are an estimate only and do not constitute a commitment that financing or a specific interest rate or term is available.
Manufacturer and/or stock photographs may be used and may not be representative of the particular unit being viewed. Where an image has a stock image indicator, please confirm specific unit details with your dealer representative.



