Used 2014 Forest River RV Salem 27DBUD
Double Size Bunks!Ask the Product Expert
Disclaimer: Responses provided by Ask the Product Expert are created by AI and offer general content for informational purposes only and should not be considered professional advice or official representation of vehicle features, pricing, or availability. Our dealership did not create and is not responsible for the information. The information provided may be incomplete or inaccurate and should be checked. For the most up-to-date and accurate information, please contact our dealership directly. Any offers, pricing, or availability mentioned by the AI-generated response are not binding and are subject to verification by authorized dealership personnel.
When using the AI Product Expert the questions you submit, the responses provided by the AI Product Expert, and your IP Address will be captured. This data is captured in an anonymized manner and used to i) improve the accuracy and capabilities of the AI Product Expert, and ii) prevent bots or other abuse of the tool. Information will be captured so that the data cannot be identified to a specific customer. Please refrain from including identifying or personal information in any question you submit to the AI Product Expert. Collection and use of information will be in accordance with our Privacy Policy.
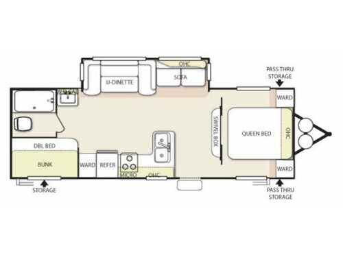
The Salem 27DBUD travel trailer by Forest River offers a single slide and a rear set of bunk beds.
To the right of the entrance there is a front bedroom with a queen bed and wardrobes on either side of the bed.
The main living area has a slide with a u-dinette and a sofa. On the opposite side of the travel trailer there is a double kitchen sink, three burner range, microwave, and refrigerator. Along the front of the kitchen/living area there is a swivel box for your TV.
The bunk house has a double bed on the bottom and a bunk above the double bed. Next to the bunks there is a nice size wardrobe.
In the bathroom you will find a shower and toilet. Just outside of the bathroom area there is a sink with a medicine cabinet.
You will find plenty of overhead cabinets throughout the travel trailer as well as exterior storage.
Parris RV is awesome! The sales team, service department, staff and management are outstanding. From our first encounter when we walked through the door to the closing of the sale, we were treated with respect and honesty. Our salesman, Kyle, was so helpful. He listened to us, answered our questions and helped us find the trailer to fit our needs. We would definitely recommend Parris RV to our family - Collen
Stock# SA012412
| Sleeps | 7 |
| Slides | 1 |
| Length | 29 ft 6 in |
| Ext Width | 8 ft |
| Ext Height | 11 ft 2 in |
| Hitch Weight | 772 lbs |
| GVWR | 7772 lbs |
| Dry Weight | 6164 lbs |
| Cargo Capacity | 1549 lbs |
| Fresh Water Capacity | 44 gals |
| Grey Water Capacity | 34 gals |
| Black Water Capacity | 32 gals |
| VIN | 4X4TSMC2XEC012412 |
Loading
Customer Satisfaction is Our #1 Priority.
At Forest River, Inc., your needs, interests, budget, and lifestyle are at the forefront of everything we do. This affects every step from design, to the manufacturing floor, and on to you, our Customer. Whatever your need—recreation, transportation, or cargo hauling—we strive to bring quality products within reach of everyone. It’s not just a slogan: “Customer Satisfaction is Our #1 Priority.”
In 1996, Forest River founder Peter Liegl had a vision. He foresaw an RV company dedicated to helping people experience the joy of the outdoors by building better recreational vehicles. After purchasing certain assets of Cobra Industries, the Company started manufacturing pop-up tent campers, travel trailers, fifth wheels and park models. Continually growing, Forest River now operates multiple manufacturing facilities throughout the United States producing Class A, B and C motorhomes, travel trailers, fifth wheels, toy haulers, pop-up tent campers, truck campers, park model trailers, destination trailers, cargo trailers, commercial vehicles, buses, pontoons, and mobile restroom trailers.
Our large production capacity enables us to fill our customers' orders promptly without cutting corners or rushing through production procedures. This ensures that each Forest River product is conscientiously built and undergoes thorough, detailed inspection before it's shipped to the customer. This guarantees that every family who desires quality recreation will find a Forest River product that serves their needs, interests, budget, and lifestyle.
Parris RV is not responsible for any misprints, typos, or errors found in our website pages. Any price listed excludes sales tax, registration tags, and delivery fees. Manufacturer pictures, specifications, and features may be used in place of actual units on our lot. Please contact us @801-268-1110 for availability as our inventory changes rapidly. All calculated payments are an estimate only and do not constitute a commitment that financing or a specific interest rate or term is available.
Manufacturer and/or stock photographs may be used and may not be representative of the particular unit being viewed. Where an image has a stock image indicator, please confirm specific unit details with your dealer representative.



