Used 2016 EverGreen RV Reactor 24FQS
Awesome Toy Hauler!Ask the Product Expert
Disclaimer: Responses provided by Ask the Product Expert are created by AI and offer general content for informational purposes only and should not be considered professional advice or official representation of vehicle features, pricing, or availability. Our dealership did not create and is not responsible for the information. The information provided may be incomplete or inaccurate and should be checked. For the most up-to-date and accurate information, please contact our dealership directly. Any offers, pricing, or availability mentioned by the AI-generated response are not binding and are subject to verification by authorized dealership personnel.
When using the AI Product Expert the questions you submit, the responses provided by the AI Product Expert, and your IP Address will be captured. This data is captured in an anonymized manner and used to i) improve the accuracy and capabilities of the AI Product Expert, and ii) prevent bots or other abuse of the tool. Information will be captured so that the data cannot be identified to a specific customer. Please refrain from including identifying or personal information in any question you submit to the AI Product Expert. Collection and use of information will be in accordance with our Privacy Policy.
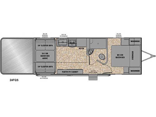
Start your next weekend adventure with the 24FQS Reactor toy hauler travel trailer. Inside you will find enough room for six, plus plenty of room for all of your riding gear.
As you enter this model by EverGreen RV, to the right there is a front bedroom with a queen bed and wardrobes on either side.
The bathroom has a toilet, sink, and large shower.
In the main living area there is a refrigerator, three burner range, microwave, large sink, and across from the sink you will find a large pantry/TV cabinet.
The cargo area has two 54" sleeper sofas, one on either side of the trailer. Above the sofas the queen bed provides additional sleeping space.
You will enjoy all of the natural sunlight that the four windows allow, as well as all of the overhead cabinets, and so much more!
Finally found the trailer I was looking for. Parris RV made me a great deal. They asked me if I had a trade in. I said yes, but I doubted they would give me what I wanted for it. Well they came close and they made it real easy for me. Then, I have to say when I went to pick up my new trailer, the walk through education was fantastic! I learned things about my new trailer I would have never figured - Kevin
Stock# EV009698
| Sleeps | 6 |
| Length | 28 ft 7 in |
| Ext Width | 8 ft 6 in |
| Ext Height | 12 ft 3 in |
| Int Height | 8 ft 3 in |
| Hitch Weight | 960 lbs |
| GVWR | 10900 lbs |
| Dry Weight | 6196 lbs |
| Cargo Capacity | 3872 lbs |
| Fresh Water Capacity | 106 gals |
| Grey Water Capacity | 41 gals |
| Black Water Capacity | 41 gals |
| VIN | 5ZWTRJE2XG1009698 |
Loading
What Does a "GREEN RV" Really Mean?The EverGreen RV process blends lean manufacturing techniques with a combination of energy efficiency and healthy, environmentally sustainable materials to create products that satisfy consumer needs with minimal environmental impact. A stringent set of green RV categories determine if a company is truly a green RV company. These categories include the following tough sustainable manufacturing standards: resource efficiency, energy efficiency, water efficiency, indoor air quality, operation & maintenance. EverGreen Recreational Vehicles LLC was awarded the Highest Certified Emerald Green Rating of any RV company. We truly are building a "Green RV".The First Certified Green Emerald Rating for any RV CompanyEverGreen Recreational Vehicles LLC is the first RV company in history to achieve the TRA Certified Green Emerald Rating for its eco-friendly Ever-LiteTM travel trailers. The Certified Green Emerald status was based on the eco-friendly, composite construction, durable outside wall construction with which EverGreen travel trailers are stringently built. The Certified Green RV Emerald Status was also based on EverGreen's lean and green manufacturing processes that recycles all waste and even reuses window and wall cutouts as baggage doors on its products.
Parris RV is not responsible for any misprints, typos, or errors found in our website pages. Any price listed excludes sales tax, registration tags, and delivery fees. Manufacturer pictures, specifications, and features may be used in place of actual units on our lot. Please contact us @801-268-1110 for availability as our inventory changes rapidly. All calculated payments are an estimate only and do not constitute a commitment that financing or a specific interest rate or term is available.
Manufacturer and/or stock photographs may be used and may not be representative of the particular unit being viewed. Where an image has a stock image indicator, please confirm specific unit details with your dealer representative.



